zook cabins nationwide delivery area

Beck

The Beck might be the smallest of the Modern Country Homes Collection, but that doesn’t mean it is without its fair share of features. The 26’x50′ Beck Small Modern Country Home is a simple, single-story prefab house that is the ideal starter home, retirement home, or getaway vacation home.

Beck 1

Northeast & Southeast Regions

Be Inspired

Beck Modern Cabin Photo Gallery

Standard Features Of The Beck Modern Cabin

cabin certified

Certified Modular Modern Cabins for sale, fully engineered to your state & local building codes.

cabin warranty

Architectural shingle roof, with an option to upgrade to 30yr metal roofing.

cabin flooring

Walls & Ceiling finished in ¾” tongue & groove knotty-pine boards. Vinyl Plank Rigid Core flooring. (maintenance-free)

cabin windows

Insulated vinyl windows, double-hung/tilt with max efficiency Low-E/Argon/HC Glass.

cabin cabinets

Solid Maple cabinets with full-extension, soft-close doors & drawers laminate countertops, with an option for a solid surface Corian.

cabin plumbing

Full wired, plumbed, and insulated to meet all state & local building codes.

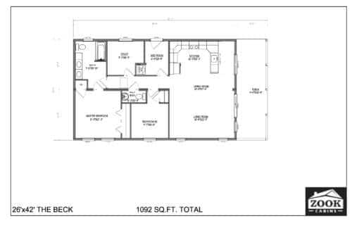
Beck Modern Cabin Floor Plans

Explore these cabin floor plans to find the one that’s right for you. Not all cabins are available in all sizes, so if you can’t find the size you’re looking for, check one of the other cabins. And if you have any questions or ideas, please feel free to contact us.

Beck 2
26 × 50

1092 finished sq.ft. · 2 Bedroom(s) · 1.5 Bathroom(s) · End  Porch

Our Pricing Includes Delivery!

Delivery, set-up, and crane charges are included. All floor plans are customizable, so let your cabin project manager know what personal touch you would like to incorporate. With Psy Homes you won’t have any worries…just a lot more time enjoying your new home and making new memories for years to come!

The Beck Cabin modern modular cabin built by Psy Homes copy

Beck Modern Cabin Exterior

On the exterior, the Beck is highlighted by a large overhang on the gable end that covers the spacious 8 ft x 26 ft front porch.

The Beck has many windows and large patio doors on the front porch, giving the home a bright, airy vibe.

The Beck Modern Cabin interior features

Beck Modern Cabin Interior

The Beck is a lovely single-story prefab house with an open layout for the main living area that includes a kitchen, dining room, and living room. The kitchen even has a breakfast bar area with seating. Back the hall, you come to the half bath and the mudroom. The mudroom also has access to the outdoors. The Beck also includes a master bedroom suite with a bathroom and walk-in closet. Another bedroom and an office or study room complete this beautiful small modern cabin, leaving ample space for a number of cabin interior design ideas.

Ready for the Cabin Life?

“I went to the woods because I wished to live deliberately, to front only the essential facts of life, and see if I could not learn what it had to teach, and not, when I came to die, discover that I had not lived.”

- Henry David Thoreau